Family 150s
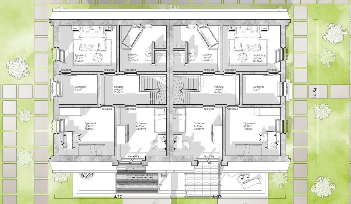
Grundriss
Innenraumvisualisierungen
Kontaktieren Sie uns
Wir laden Sie ein, mit GreenHomes zusammenzuarbeiten! Gemeinsam können wir bessere, nachhaltigere und innovativere Baukonzepte schaffen. Kontaktieren Sie uns, um mehr zu erfahren und Ihre Zusammenarbeit mit uns zu beginnen.
Möchten Sie mehr erfahren?
Sprechen Sie mit einem GreenHomes-Experten. Wir erklären Ihnen, wie unsere einzigartigen Produktionsmethoden Ihnen und Ihrer Familie zugutekommen können.
Bei GreenHomes bauen wir für Sie.

GreenHomes Kundenbetreuer
Ähnliche Projekte
Umfang der Bauarbeiten |
Geschlossener Rohbau | Schlüsselfertig |
|
Diffusionsoffene Außenwand – außen mit Fassadendämmwolle gedämmt, C24-Konstruktion, Wandstärke 309 mm, U=0,15 W/m²K. |
|
|
|
Innenwände – enthalten 5 cm Dämmwolle zur Schalldämmung, beidseitig mit OSB3-Platten verkleidet für Tragfähigkeit und Stabilität. C24-Konstruktion, 120 mm. |
|
|
|
Dach – mit Betondachziegeln (oder vergleichbar) gedeckt, einschließlich Kanten-, First- und Giebelziegeln. |
|
|
|
PVC-Fenster – 6-Kammer-Profil, 3-fach Wärmeschutzverglasung. Wärmedurchgangskoeffizient Ug 0,5 W/m²K. |
|
|
|
Alle Fenster, außer Balkon- und Terrassentüren, sind mit Außenfensterbänken aus Aluminium ausgestattet. |
|
|
|
Eingangstür – Standard-Außentür mit drei Scharnieren und Edelstahlgriff (L=500 mm). |
|
|
|
Regenrinnen und Fallrohre aus Kunststoff, ohne Weichmacher, bruchfest und witterungsbeständig. |
|
|
|
Organisationsarbeiten – Montage des Gebäudes, Dachdeckerarbeiten, Unterbringung der Arbeiter, Bereitstellung eines Krans und Gerüsts für die Bauzeit. |
|
|
|
Wasser- und Abwasserinstallation – von der Wasseruhr bis zu den Entnahmestellen, einschließlich Leitungsverlegung. |
|
|
|
Elektroinstallation – Basisinstallation, Verkabelung. |
|
|
|
Decken – Gipskartonplattenverschraubung, Dämmung des unteren Bindergurtes mit 195 mm Mineralwolle. |
|
|
|
Außenputz – hochwertiger Silikonputz mit erhöhter Hydrophobie und selbstreinigenden Eigenschaften. |
|
|
|
Natürliche Lüftung – Abluftkanäle. |
|
|
|
Bodenbelag / Estrich |
|
Wählen Sie ein Haus von höchster Qualität, das Ihre Erwartungen erfüllt.
Wir sind führend im Bau von Fertighäusern in Holzrahmentechnologie. Greenhomes Polska ist Teil der Greenhomes GmbH, die auf dem deutschen Markt tätig ist.
Nutzen Sie unsere Erfahrung und bauen Sie mit uns ein solides HAUS!
Wir verfügen über zwei Zertifikate, die unsere Qualität bestätigen – das deutsche RAL-Qualitätszertifikat sowie die Auszeichnung EUROPEAN QUALITY CERTIFICATE® in der Kategorie Produkt für unsere vorgefertigten und energieeffizienten Holzrahmenhäuser.
Die angegebenen Preise sind Richtwerte und beziehen sich auf den Standard gemäß der technischen Beschreibung, der von der dargestellten Visualisierung abweichen kann. Der Preis gilt für das 2. Quartal 2024 und kann je nach Marktlage variieren










